Brousící, vrtací a frézovací rameno
- na broušení a leštění
- vhodné pro vrtání a frézování
- stabilita a tuhost stroje
- velké množství doplňkového příslušenství

Ovládací panel vrchní pro ovládání pneumatiky stroje
Ochranné měchy - slouží pro ochranu sloupu a pojezdového šroubu v ose Z.
Spodní ovládací panel s ovladáním motorů a dalších funkcí
Betonový nebo železný základ pod stroj.
Pneumatický brzdící systém.
Brousící rameno GA 1100 C
Základní
informace
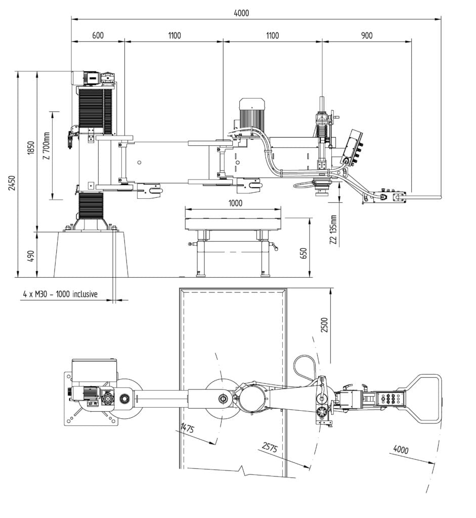
GSM 1100 F je nejvyšší verze stroje, která je schopna broušení, leštění, štokování, vrtání a frézování o maximálních rozměrech plochy 2 500 x 1 200 mm. Masivní konstrukce stroje minimalizuje vibrace a tím i stabilitu nástroje. Důraz je kladen na snadnou manipulaci, kterou umožňují dvě ramena s roztečí 1 100 mm samostatně uložené v ložiskových pouzdrech. V základní verzi je vřeteno poháněno motorem o výkonu 5,5 kW a otáčkami 1200 RPM, možno rozšířit na 7,5 kW a 2550 Rpm.
Základní verze stroje umožnuje motorický posun výšky ramen na sloupu o 700 mm.
Vřeteno stroje má zdvih 130 mm a je zakončeno nerezovou přírubou s rychlo-upínáním.
Velký výběr příslušenství a nástrojů Vám pomůže k úspěchu.
Rameno je možné vybavit následným příslušenstvím. Protitlak, Oscilace, Boční pomocný přítlak
Přídavné motory, mechanický doraz, pomocná řídítka a externí přívody médií.
Technická
specifikace
Technické parametry stroje v základním provedení
Minimální výška bez podstavce:
Celková výška:
2450 mm
Celková šířka:
3700 mm
Provozní napětí stroje:
3 x 380 V / 50 Hz
Průměr pro broušení :
230 – 500 mm
5 000 x 5 000 mm
7,5 kW
18-22 l/min
200 – 2550 ot/min
Z – zdvih ramene:
motoricky 700 mm
Z- zdvih vřetene:
pneumaticky 130 mm
9 kW
Ukončení vřetene:
příruba s rychloupínáním
sloup, zdvihový šroub
1 750 kg









